关注“民宿头条”,真爱 请置顶

Greg夫妇在孩子出生之际
选择了“流浪”
因为他们买不起房

他们觉得与其为了城里的一间房而犯愁
不如选择“买不起就跑!”
况且他们夫妻俩本来也不喜欢
被锁在盒子一样的公寓房里

5万美金是他们的全部积蓄
四舍五入大概30来万人民币
他们拿出这笔钱购买了一个可拆可装
可打包带走的“小别墅”

“小别墅”是Greg夫妇在一家叫tiny house的公司定制的
价格良心,面积够用

虽然只有28平米,但是居然自带一个花园露台
只要拉在车后就能上路啦

是不是有人要问了
“这不就是房车吗?”
但房车是不能拆卸的
而这个大黑箱子
随地摊开
就成了一个家

“Tiny house”会把购买的房子在工厂提前搭建好
到了选定的未来居住的地方
就只要搭建一个小花园
处理一些细节问题就可以了

于是Greg夫妇租了一辆车
拖着自己的小别墅
离开了城市
开始了“流浪”的生活

他们在森林里
找了一片洒满阳光的平地
就地取材,开始搭起了小花园
拔掉杂草、架起栅栏
不到5个小时,二人的新家就落成了

温暖的阳光洒满了整间房,门口鸟语花香
女主人Lara悠闲地坐在花园平台上晒太阳

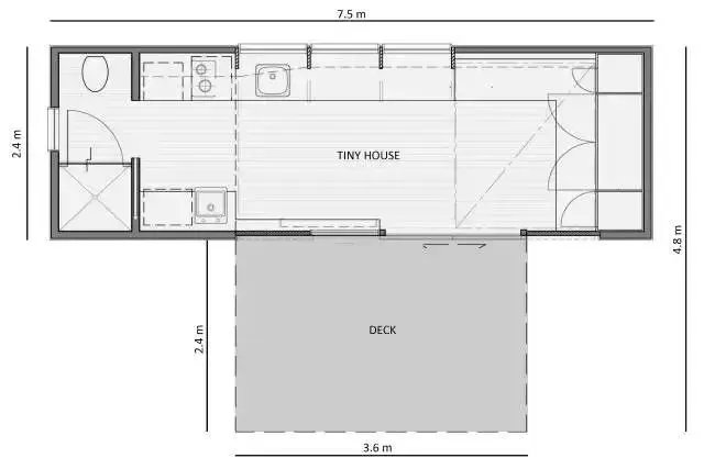
两侧的位置是起居室,中央的是厨房和客厅
房子虽小,五脏俱全
28平米的空间里包含了两室一厅一卫
小花园平台也有10平米
两侧的位置是起居室
中央的是厨房和客厅

房间有两个卧室
其中一个和客厅相连
角落摆了一排L型沙发
白天,这里也能就当客厅
客人来了可以请他们坐这里

由于空间吊顶有2.6米
所以上层空间的利用率很高
比如卧室里
吊在天花板的床是可升降的
白天不使用的时候
就上升到屋顶
晚上降下来,就可以睡觉了

底部L形的沙发的尺寸
和床的尺寸经过精确测量计算
床降下来的时候
刚好和L型的沙发契合

虽然内部空间只有18平米
但是Greg夫妇也要过得很有情调
他们专门用一整面墙来摆放绿植
从桌面一直到吊顶,很森系

为了节约空间
他俩把储物空间嵌入了墙壁内侧
在沙发和床之间
装了一个衣帽间和鞋柜
旁边的小格子都用来做储物空间

另一侧的卧室
也是设在了高处
阁楼有一扇小窗
上去的时候通过小铁架就可以爬上去

小卧室里白天有阳光洒进来
夜晚有暖灯可以照明
任意时间都可以很温暖

过道的一侧
设立了简易的厨台
墙壁上安装了很多的隔板
不仅可以放厨房用品
也可以放很多绿植

三扇大窗可以让
Lara边做饭边赏景

他们的小家四处都是窗户
抬头就能看到户外的风景
美得像画一样

卫生间在小阁楼的下面
洗手台在卫生间的外面
保证干湿分离

台面的下面放了洗衣机
上面还放了咖啡机
即利用了空间,又充满了小资情调

当然
10平的花园平台也要充分利用
夫妻俩在平台上摆了沙发
白天日光浴中喝咖啡
晚上躺着数星星

“小别墅”买来五周
Greg 和 Lara 的小宝宝就出生了
Greg说现在的空间
对于他们一家三口来说刚刚好
虽不宽敞,却足够亲密

等孩子长大了,空间不够用时
他们还能再在tiny house公司再买些扩充空间
直接加在现有的房子上

很多人说
房间这么小
还到处拉着跑
一点也没有安全感

但对Greg夫妇而言
正因为家不是固定的
他们才看到了更多的可能性
想去海边就去海边
想去山脚就去山脚
每一个“明天”都充满了想象

有心爱的人陪在身边
便是心安
心若没有栖息的地方
走到哪里都是流浪
民宿头条学院第70期游学,目的地莫干山
4天3晚,实地考察8大品牌民宿
与8位民宿大咖讲师面对面交流实战经验
从选址到运营手把手教你如何做好一家民宿
志同道合的伙伴将陪你一起前行
长按二维码咨询报名
联系方式:程老师17777869675

点民宿头条5月7日莫干山游学欢迎报名
什么,装修还用自己的钱?!齐家装修分期,超低年利率3.55%起,最高可贷100万。立即申请享受优惠
